Самара

7:30 - 16:00 (мск)

Сб-Вс: Выходные

г. Самара, Московское шоссе 18км Территория Завода Приборных Подшипников

Запрос прайс-листа
0 0 0
Каталог

Оформление заказа

Песочница средняя (Коричневый) - ИО 5.01.15-02

Артикул: ИО 5.01.15-02
Розничная цена:

Узнать цену

Характеристики
Принт: Коричневый
Вид оборудования: Песочницы
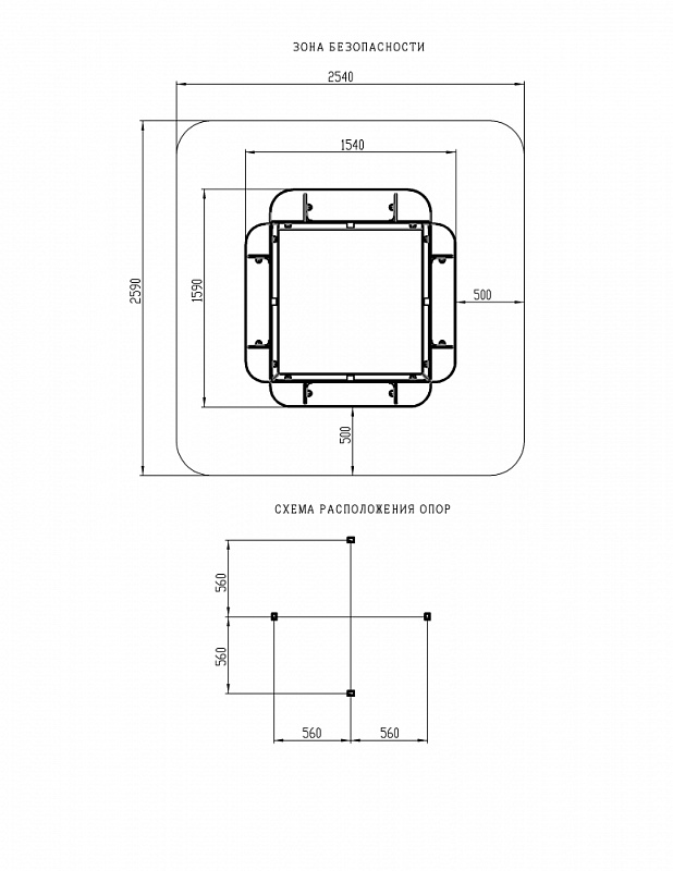
Габариты (ШхДхВ): 1590x1540x420
Зона безопасности, мм: 2590х2540
Вес, кг: 41,20
Другие характеристики
  • Описание

  • Характеристики

Песочница (коричневый) ИО 5.01.15-02

  • Артикул

    ИО 5.01.15-02

  • Артикул (старый)

    ИО 515.2

  • Принт

    Коричневый

  • Вид оборудования

    Песочницы

  • Габариты (ШхДхВ)

    1590x1540x420

  • Зона безопасности, мм

    2590х2540

  • Вес, кг

    41,20

  • Возрастные ограничения

    до 14 лет, весом не более 70 кг

  • Фильтр по возрасту

    Младший возраст

  • Для детского сада

    да

  • Официальная гарантия

    Гарантийный срок на изделия от 12 месяцев

  • Сертификат

    ЕАЭС № RU Д-RU.AE83.B.02674/20 Декларация соответствия (Песочницы и песочные дворики)


Входим в реестр российской промышленной продукции

icon5
Важно: 
Обращаем Ваше внимание, что мы постоянно стремимся улучшать качество выпускаемой продукции, для чего периодически можем вносить изменения в конструкцию, дизайн и комплектацию товаров и упаковки на основании собственных инновационных разработок и отзывов пользователей без дополнительного уведомления. Данные изменения принципиально не влияют на первоначально заявленные функциональные свойства. Вследствие этого, технические характеристики, вес и размеры могут незначительно отличаться. 
icon4
Соответствие стандартам:
Оборудование изготовлено по чертежам и техническим условиям изготовителя и соответствует требованиям ТР ЕАЭС 042/2017.
- Детское игровое оборудование спроектировано и изготовлено согласно межгосударственному стандарту, а именно ГОСТ34614.1-2019, ГОСТ34614.2-2019, ГОСТ34614.3-2019, ГОСТ34614.5-2019, ГОСТ34614.6-2019.
- Уличные тренажеры спроектированы и изготовлены по ГОСТ Р 55678-2013, ГОСТ Р 57538-2017.
- Спортивное оборудование, спортивные комплексы, воркаут и многофункциональные комплексы спроектированы и изготовлены по ГОСТ Р 55677-2013.
icon3
Паспорт на изделие:
на русском языке, согласно ГОСТ34614.1-2019, раздел 6.
icon6
Гарантийный срок на изделия:
12 месяцев

  • Предложения магазина