7:30 - 16:00 (мск)
Сб-Вс: Выходные
г. Самара, Московское шоссе 18км Территория Завода Приборных Подшипников
Контактная информация
7:30 - 16:00 (мск)
Сб-Вс: Выходные
г. Самара, Московское шоссе 18км Территория Завода Приборных Подшипников
Описание
Характеристики
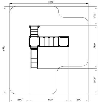
Детский игровой комплекс Королевство (Коты) ДИК 1.15.06-11
|
|
ДИК 1.15.06-11 Королевство(коты) |
|||
|
Комплектация |
Кол-во |
Единица измерения |
||
|
1 |
Башня |
Выполнена из четырёх клеёных брусьев, окрашенных в коричневый цвет, сечением 100х100 мм и высотой 2500 мм. Пол из ламинированной фанеры с антискользящим покрытием размером 780х780 мм толщиной 18 мм. Башня без крыши, украшена стилизованными декоративными арками, кромки фанеры тщательно шлифованы, окрашены с нанесением принта. Отметка пола башни от планировочной отметки площадки 900 мм |
2 |
комплект |
|
2 |
Горка h900 |
Скат горки шириной 530 мм, выполнен из нержавеющей стали t 1,5 мм, - цельного листа, борта выполнены из влагостойкой фанеры толщиной 24 мм, кромки фанеры тщательно шлифованы, борта окрашены при помощи УФ печати. Ограждения стартового участка горки, выполнены из влагостойкой фанеры толщиной 18 мм, фанера окрашена при помощи УФ печати. Опорный каркас горки выполнен из профиля 40х25 и труб диаметром 32 мм (металл имеет плавные радиусы и тщательную обработку швов, покрыт порошковой краской). Габарит горки 530х 1680х900(h). Горка поставляется в собранном виде. |
1 |
комплект |
|
3 |
Ограждения башен |
Ограждения башен двух видов: стальные - из труб диаметром 27 мм и профиля 15х15 мм (580х450 мм) и из влагостойкой фанеры толщиной 18 мм с нанесением принта. |
3 |
шт. |
|
4 |
Лестница 900 |
Лестница состоит из бортов, выполненных из фанеры влагостойкой толщиной 24 мм, и четырех ступенек, выполненных из ламинированной анти-скользящей фанеры, толщиной 18 мм, ширина ступней 560 мм. Пространство между ступенями закрыто экранами из влагостойкой фанеры толщиной 18 мм, между ступенью и экраном имеется щель для слива дождевой воды. Ступени и экраны вставляются в пазы бортов лестницы. Борта стягиваются шпильками диаметром 10 мм. Кромки фанеры тщательно шлифованы, борта окрашены при помощи УФ печати. Лестница монтируется к брусу башни и на входе-к двум клеёным брусам 100х100 мм высота 800 мм, брус окрашен в коричневый цвет. Лестница поставляется в собранном виде. |
1 |
комплект |
|
5 |
Перила лестницы |
Выполнены влагостойкой фанеры толщиной 24 мм. В комплекте 2 шт. перил. |
1 |
комплект |
|
6 |
Мост прямой 1500 |
Мост состоит из сварного каркаса из стальной профильной трубы 40х40х2 и трубы 40х25х2мм, а также стальных пластин шириной 40мм длиной 120 мм (металл имеет плавные радиусы и тщательную обработку швов, окрашен порошковой краской) и половиц из влагостойкой ламинированной фанеры (толщиной 18 мм) с анти-скользящим покрытием 780х373х18 -4 шт. Мост поставляется в сборе. Габарит 1500х780х140мм. |
1 |
комплект
|
|
7 |
Ограждения прямого моста 1500 |
Выполнены из влагостойкой фанеры толщиной 18 мм, кромки фанеры тщательно шлифованы, окрашены при помощи УФ печати. Габариты 1500х700х18 мм. Комплект – 2 шт. |
1 |
комплект |
|
8 |
Скалолаз |
Скалолаз состоит из щита из влагостойкой фанеры, толщиной 18 мм, размер 780х580 мм, с прорезями. Окрашен с нанесением принта. |
1 |
шт. |
|
9 |
Игровая панель (щит-лабиринт) |
Выполнен в виде сборной конструкции, которая состоит щита перемещающихся ползунков. Щит - из влагостойкой фанеры толщиной 18мм. Габарит щита 780х580х18 мм. В щите выполнены прорези, по которым перемещаются ползунки. Ползунки выполнены как соединение двух кругов из влагостойкой фанеры толщиной 18мм, диаметр кругов 100мм. Круги соединены между собой болтом через трубу ПВХ 25мм. Щит окрашен с нанесением принта. |
1 |
комплект
|
|
10 |
Принт Коты |
Основной цвет принта голубой – небо с облаками, на фоне неба – мультяшные, сумасшедшие, разноцветные коты и птички. |
||
Артикул
ДИК 1.15.06-11
Артикул (старый)
ДИК 1506.11
Серия
Принт
Вид оборудования
Габариты (ШхДхВ)
3100х3320х2650
Зона безопасности, мм
6100х6820
Высота падения, мм
900
Вес, кг
290,60
Скат горки
H=900 (металлический скат)
Возрастные ограничения
от 3 до 7 лет, весом не более 70 кг
Фильтр по возрасту
Для детского сада
Официальная гарантия
Гарантийный срок на изделия от 12 месяцев
Сертификат
RU №0208095 №: RU C-RU.AE83.B.00092/20 Сертификат соответствия (Детские игровые комплексы)
| ✅ | Входим в реестр российской промышленной продукции |
|
|
Важно: Обращаем Ваше внимание, что мы постоянно стремимся улучшать качество выпускаемой продукции, для чего периодически можем вносить изменения в конструкцию, дизайн и комплектацию товаров и упаковки на основании собственных инновационных разработок и отзывов пользователей без дополнительного уведомления. Данные изменения принципиально не влияют на первоначально заявленные функциональные свойства. Вследствие этого, технические характеристики, вес и размеры могут незначительно отличаться. |
|
|
Соответствие стандартам: Оборудование изготовлено по чертежам и техническим условиям изготовителя и соответствует требованиям ТР ЕАЭС 042/2017. - Детское игровое оборудование спроектировано и изготовлено согласно межгосударственному стандарту, а именно ГОСТ34614.1-2019, ГОСТ34614.2-2019, ГОСТ34614.3-2019, ГОСТ34614.5-2019, ГОСТ34614.6-2019. - Уличные тренажеры спроектированы и изготовлены по ГОСТ Р 55678-2013, ГОСТ Р 57538-2017. - Спортивное оборудование, спортивные комплексы, воркаут и многофункциональные комплексы спроектированы и изготовлены по ГОСТ Р 55677-2013. |
|
|
Паспорт на изделие: на русском языке, согласно ГОСТ34614.1-2019, раздел 6. |
|
|
Гарантийный срок на изделия: 12 месяцев |
Рекомендуемые товары
производство современного оборудования
для парков, игровых и спортивных площадок
|
ООО «ПРОГРЕСС БЛАГОУСТРОЙСТВА». Официальный производитель товарного знака СКИФ ПРО ®. Информация на данном интернет-сайте носит исключительно информационный (ознакомительный) характер и ни при каких условиях не является публичной офертой, определяемой положениями Статьи 437 Гражданского кодекса РФ. Для получения исчерпывающей информации о стоимости и характеристиках товаров обращайтесь по телефонам на сайте. Автоматизированный сбор информации с сайта и любое использование контента, а так же без письменного разрешения администрации сайта запрещено. © 2025. Все права защищены. |